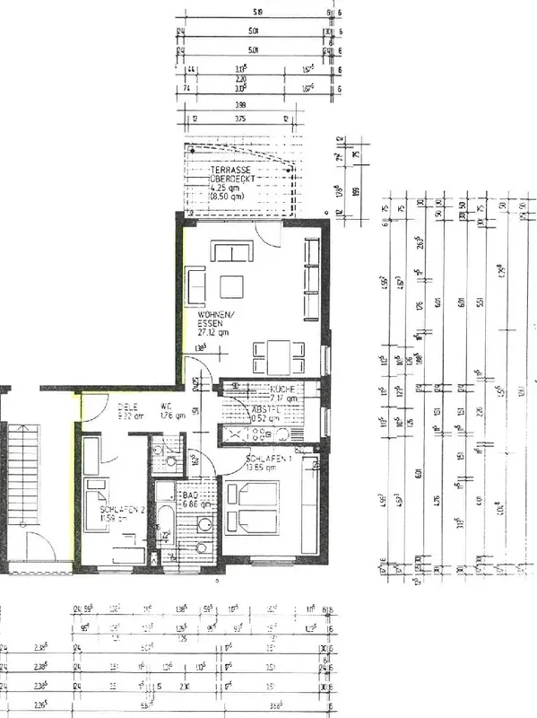
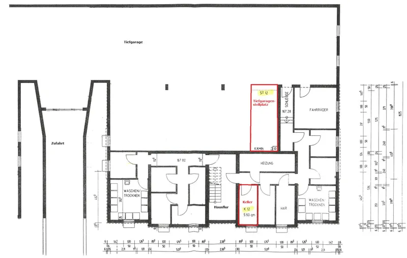
82 m² große Erdgeschosswohnung mit großer Terrasse, Tageslichtbad, G-WC und Tiefgaragenstellplatz

Diese sehr gepflegte ca. 82 m² große 3-Zimmer-Eigentumswohnung befindet sich im Erdgeschoss eines ebenso gepflegten Mehrfamilienhauses in einer ruhigen Seitenstraße im beliebten Klosterviertel in Hagen. Nachdem Sie über den Hauszugang stufenlos [...]

 
Die großzügige TerrasseRückansicht HausHauszugang und TiefgaragenzufahrtDer Wohn-Essbereich1. Schlafzimmer2. Schlafzimmer (Foto I)2. Schlafzimmer (Foto II)Die Küche (Foto I)Die Küche (Foto II)Das moderne TageslichtbadDas Gäste-WCGrundriss 3D- VisualisierungGrundriss 3D

Anfrage senden