Mehr geht nicht! 9,5 % Rendite!

Renditestarkes Gewerbe-/Anlageobjekt mit PV-Anlage als Kapitalanlage. Das Gewerbeobjekt verfügt über mehrere Hallenbauteile sowie Büroeinheiten mit insgesamt 10 Mieteinheiten. Insgesamt ca. 1.740 m² vermietbare Fläche, verteilt auf 3 Gebäudeteile. Die gesunde [...]

 
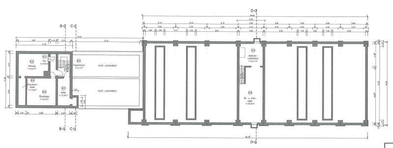
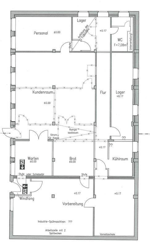
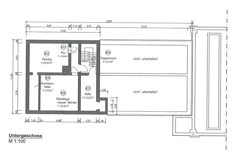
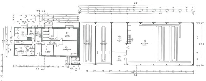
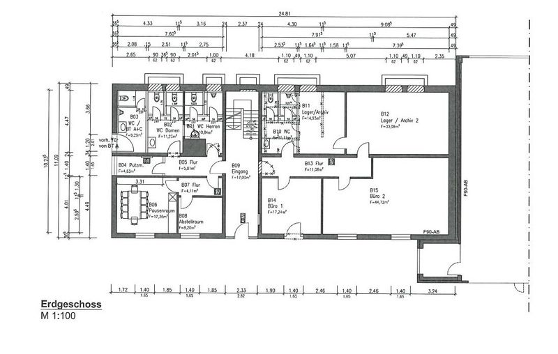
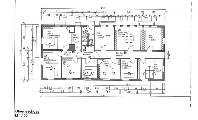
Ansicht Werkstatt und BüroteilBürogebäudeStraßenansichtWerkstattgebäudeStraßenansichtLageplan mit GebäudenGrundriss UG und Kfz.-WerkstattGrundriss OG BürogebäudeGrundriss EG BürogebäudeGrudriss OGGrundriss KGGrundriss KGNordansichtOstansichtWestansichtSüdansicht

Anfrage senden