Modernisiertes ca. 150 m² großes Fachwerkhaus mit zwei Wohneinheiten zentral in Hagen- Hohenlimburg

Dieses außergewöhnliche, denkmalgeschützte Fachwerkhaus bietet Ihnen die seltene Möglichkeit, in einer Immobilie zu wohnen, die Geschichte und modernen Wohnkomfort auf einzigartige Weise verbindet. Zentral in Hagen-Hohenlimburg gelegen, aber leicht zurückversetzt [...]

 
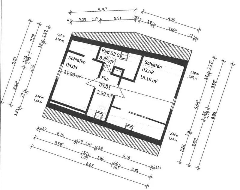
Vorderer EingangFrontansichtRückansichtWohnzimmer EGSchlafzimmer EGKüche EGKüche OGWohnbereich OGSchlafzimmer OG1. Schlafzimmer DG2. Schlafzimmer DGGrundriss EG (Einlieger)Grundriss OGGrundriss DGGrundriss DachbodenGrundriss KellerTageslichtbad im DG Foto 1Tageslichtbad im DG Foto 2Gäste-WC im OGTageslichtbad im EGKleiner Außenbereich

Anfrage senden