Sofort bezugsfreie Dachgeschoss-Wohnung in Denkmalschutz-Immobilie in Mülheim

Angeboten wird eine sofort bezugsfreie Dachgeschoss-Wohnung in einer Denkmalschutz-Immobilie in Köln-Mülheim. Ihr neues Zuhause befindet sich im 4. Obergeschoss, was gleichzeitig bedeutet, dass Sie keine Nachbarn über sich haben werden. [...]

 
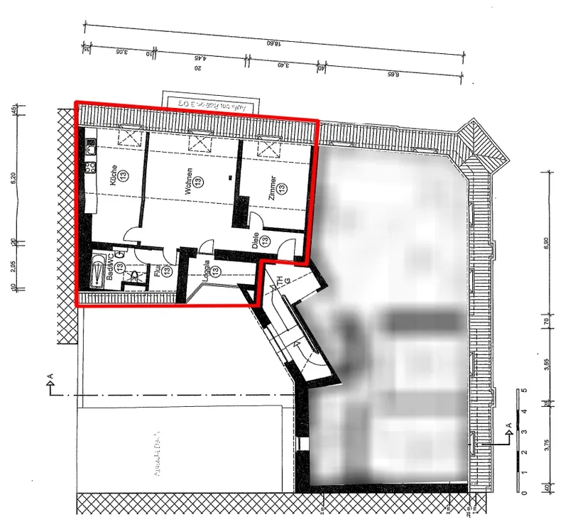
Grundriss Wohnung Nr. 13AußenansichtAußenansichtAußenansichtAußenansichtAußenansichtLuftbildTreppenhausTreppenhausAnsicht 1Ansicht 2Lageplan mikroLageplan makro

Anfrage senden