Geld anlegen in Brilons Guter Stube - Innenstadt!

Top-gepflegtes und voll vermietetes Dreifamilienwohnhaus als Kapitalanlage. Insgesamt 216 m² Wohnfläche. Die größte Wohnung mit 106 m² Wohnfläche verteilt sich auf 2 Ebenen und verfügt über eine Terrasse mit idyllischem [...]

 
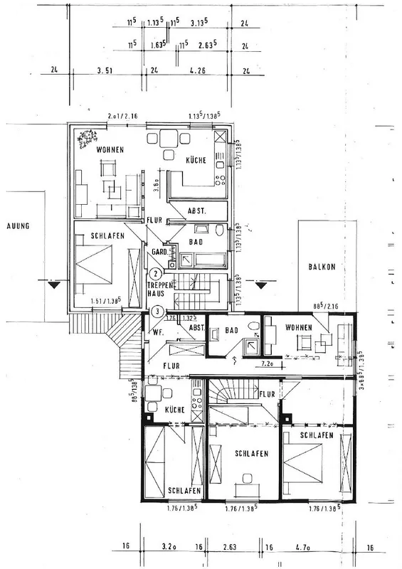
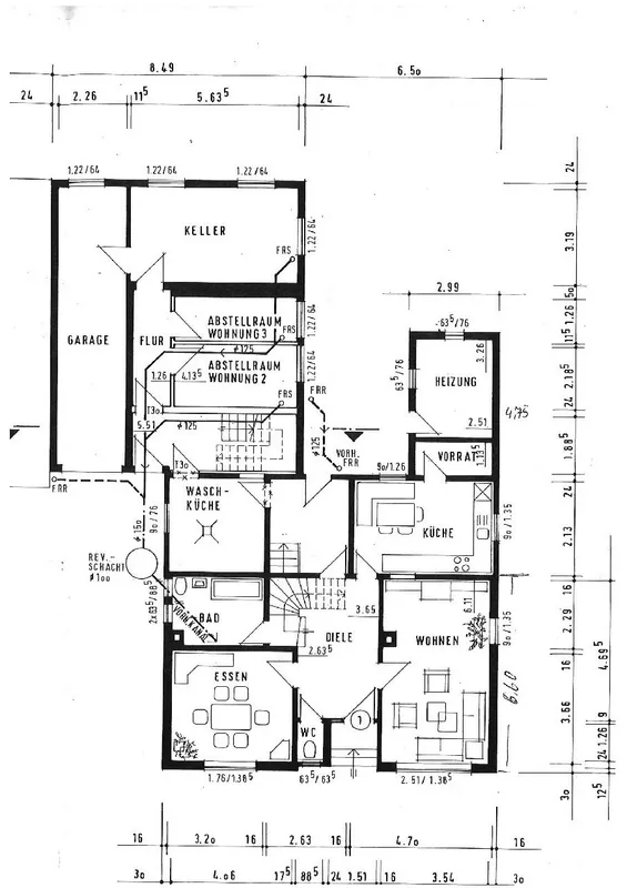
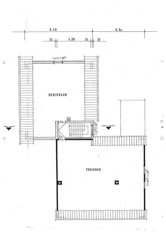
Ansicht mit GarageStraßenansichtKüche Wohnung ErdgeschossGartenGartenTerrasse ErdgeschossSchlafzimmerKüche ObergeschossBalkon ObergeschossLageplanGrundriss ErdgeschossGrundriss ObergeschossGrundriss Dachboden nicht ausgebautAnsicht NordenAnsicht OstenAnsicht WestenAnsicht SüdenKüche Obergeschoss

Anfrage senden